PROFESSIONAL PRACTICE
INSTRUCTOR: MARK OWEN
THE COURSE WAS DESIGNED TO TEACH US ASPECTS OF THE PROFESSIONAL WORLD OF ARCHITECTURE WITH THINGS SUCH AS, CONSTRUCTION DRAWINGS, GUIDELINES, AND CODES THAT HAD TO BE FOLLOWED.
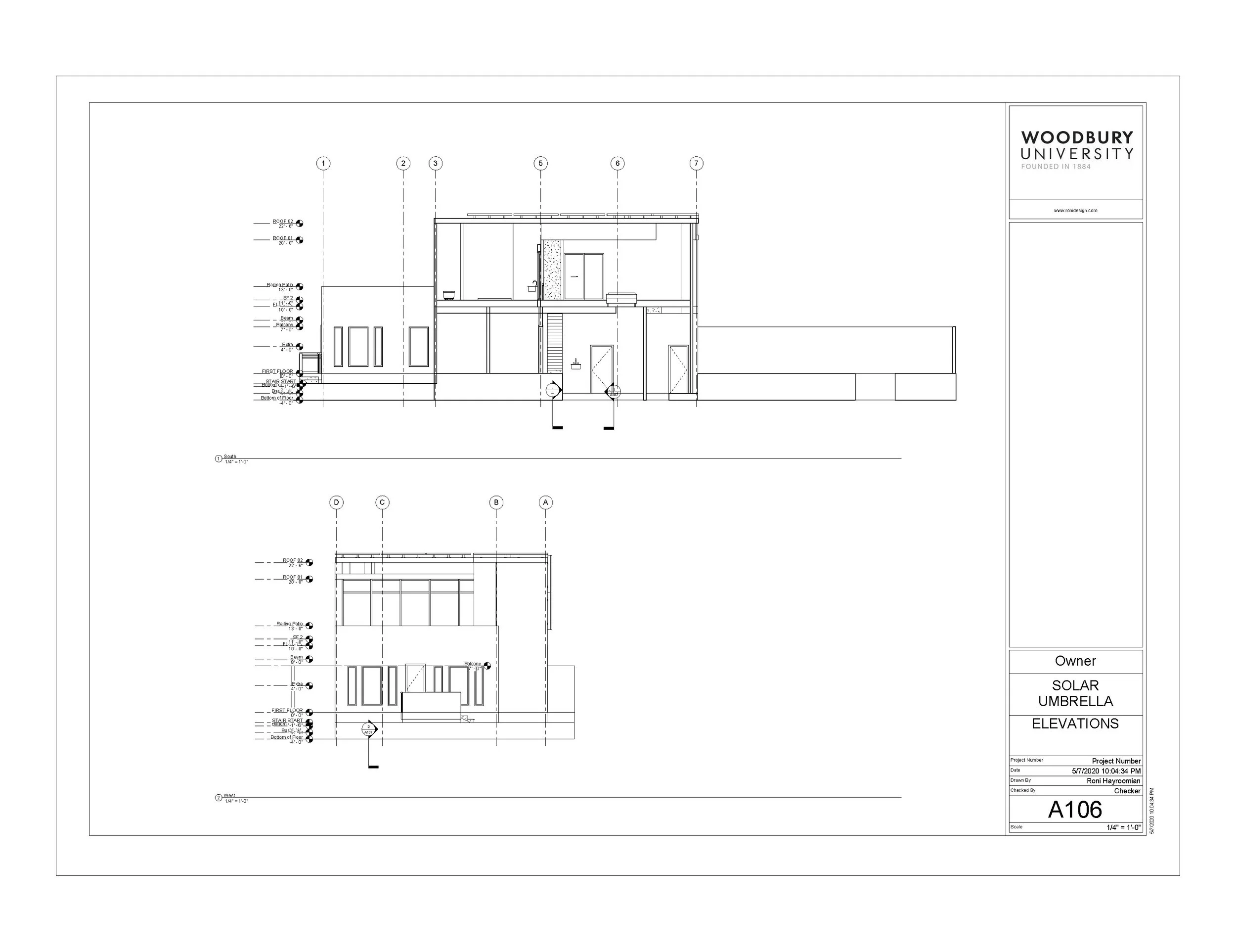
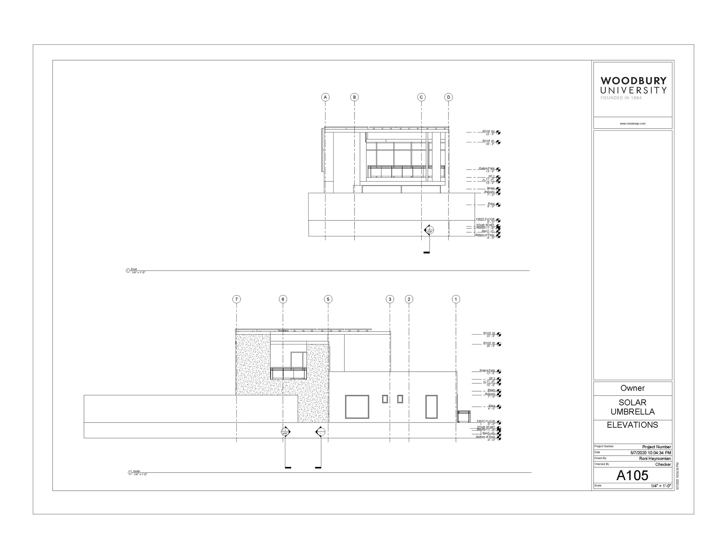
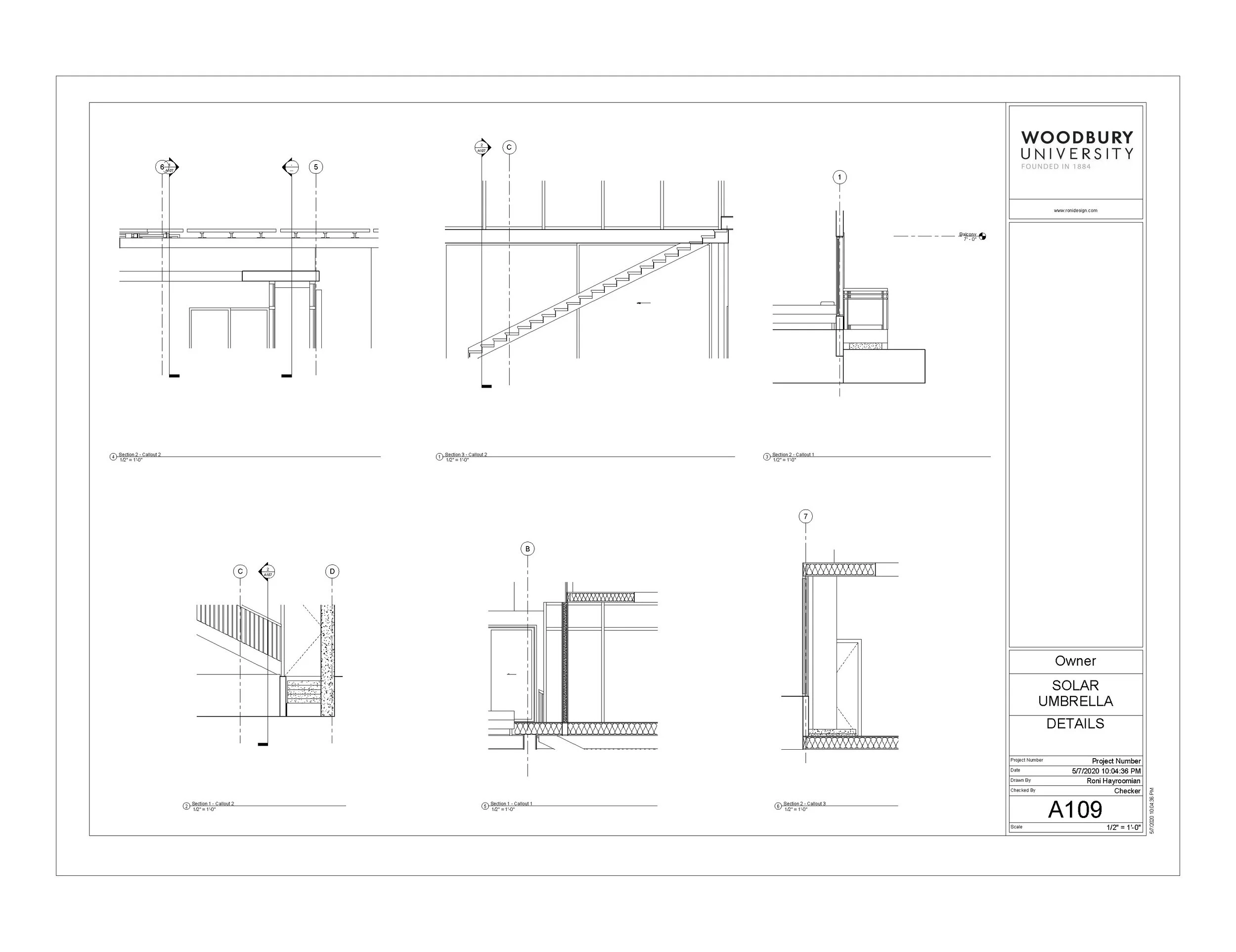
THE SOLAR UMBRELLA HOUSE WAS MODELED ON REVIT TO RECREATE THE EXISTING HOUSE FROM THE PLANS, SECTIONS, AND IMAGES FROM BOTH THE INSIDE AND OUTSIDE THAT WERE PROVIDED TO US. THE PROJECT ITSELF INVOLVED ALL THE MAIN DETAILS THE ORIGINAL HOUSE CAME WITH ALONG WITH THE CONSTRUCTION DOCUMENTS.

Project 1

ADA Restroom